Company logo
Back to Building Options
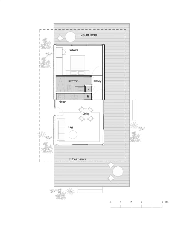
BareFoot Luxury: Tiny House 1 Bedroom

This cozy one-bedroom tiny house offers a minimalist design with large windows, blending seamlessly with its natural surroundings. Ideal for those seeking simplicity, comfort, and a deep connection to nature.

Tiny House 1 Bedroom
Gallery image 1
Gallery image 2
Gallery image 3
Explore possibilities together

Let's have a conversation

Tiny House 1 Bedroom (BareFoot Luxury) :: Oka Village