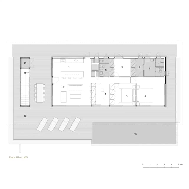
This hillside home combines modern design with natural materials, featuring panoramic views, open-plan living, and an infinity pool. Its elevated stone base blends with the landscape, offering both luxury and harmony with the surrounding nature.
















Let's have a conversation