Company logo
Back to Building Options
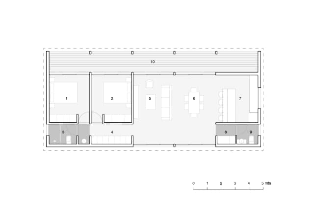
BareFoot Luxury: Modular House 2 Bedroom

This spacious two-bedroom modular house offers modern comfort and flexibility, nestled in lush surroundings. Its open layout and large windows invite natural light, creating a perfect retreat for peaceful living in nature.

Modular House 2 Bedroom
Gallery image 1
Gallery image 2
Explore possibilities together

Let's have a conversation

Modular House 2 Bedroom (BareFoot Luxury) :: Oka Village